Opplev det moderne designet til denne store eneboligen med en spennende og stram fasade, preget av rene linjer og store vindusflater. To balkonger og terrassen er omgitt av glassrekkverk, som skaper en spennende kontrast til den liggende kledningen i tre.
Med et totalt areal på 208 kvm, inkludert carport og sportsbod, er denne boligen romslig og funksjonell med fire soverom, et stort fellesrom med stue og kjøkken, en egen tv-stue, to bad, eget separat vaskerom og flere boder.

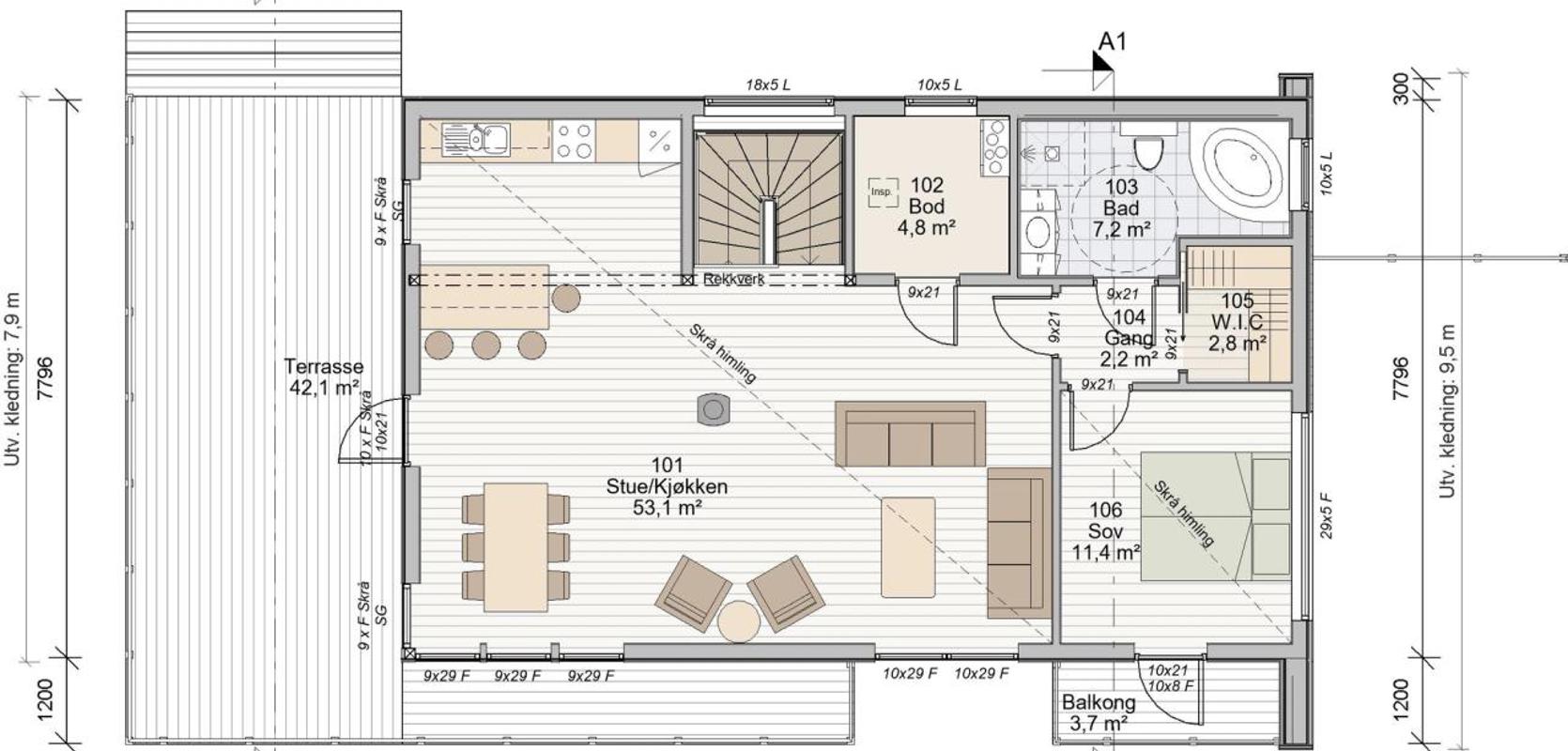
Et tilpasset Signatur 305 bygget av Mesterhus Innlandet.
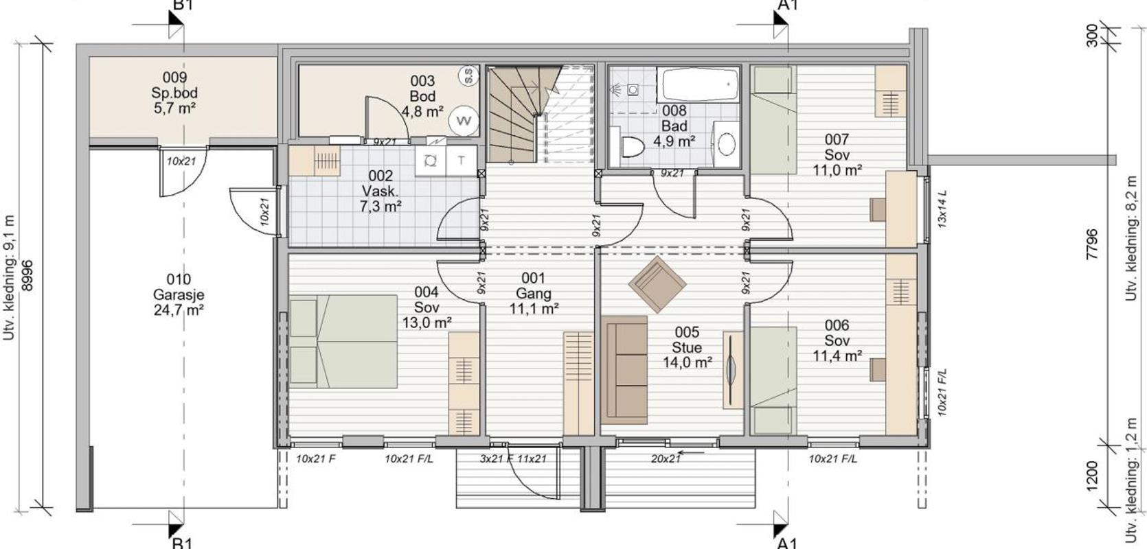
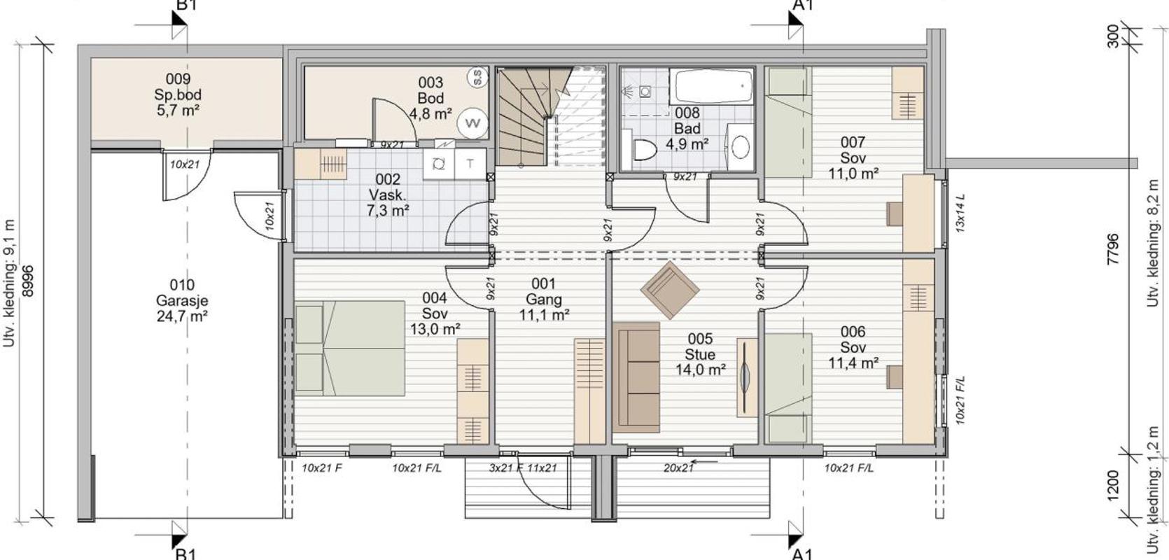
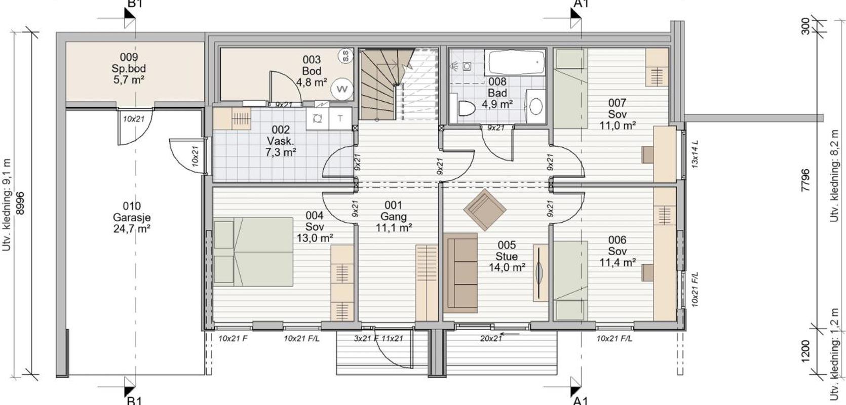
Hovedinngangen ligger i underetasjen og er overbygget, slik at du enkelt kan gå tørrskodd inn i huset fra carporten. Vaskerommet gir også direkte adkomst fra carporten, noe som er svært praktisk for aktive familier eller dyreeiere.
Underetasjen har en romslig hall som fører til et stort soverom, vaskerom med egen utgang, en komfortabel tv-stue med tilgang til et bad og to andre soverom, samt en egen utgang mot terrenget.

Et tilpasset Signatur 305 bygget av Mesterhus Innlandet.
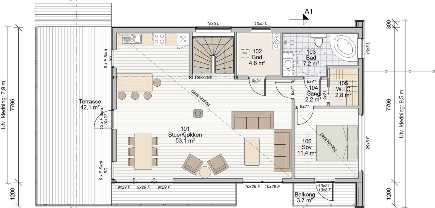
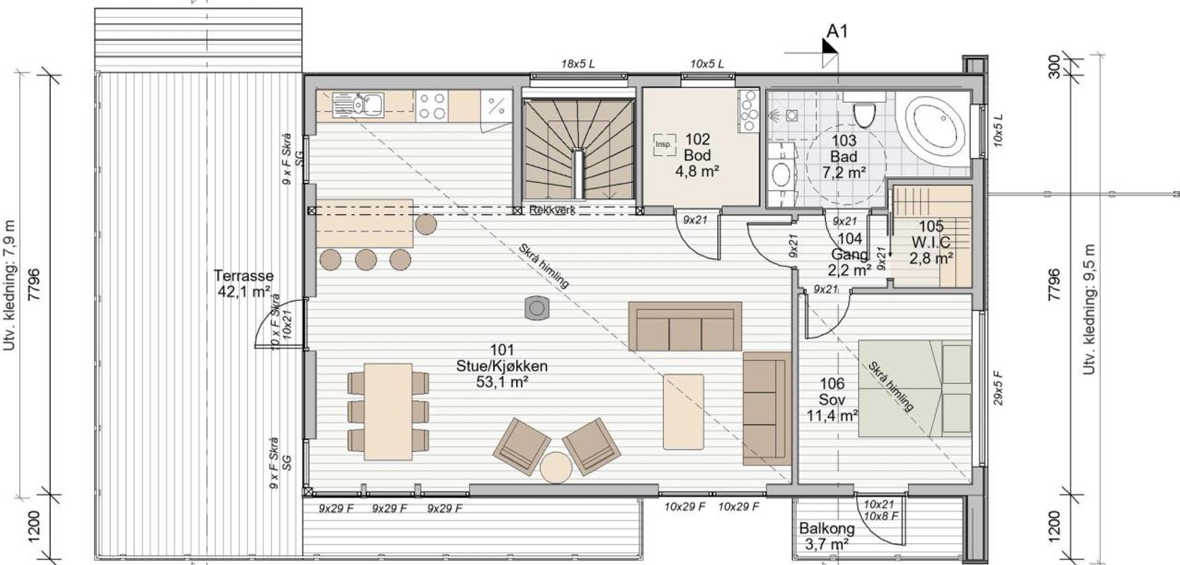
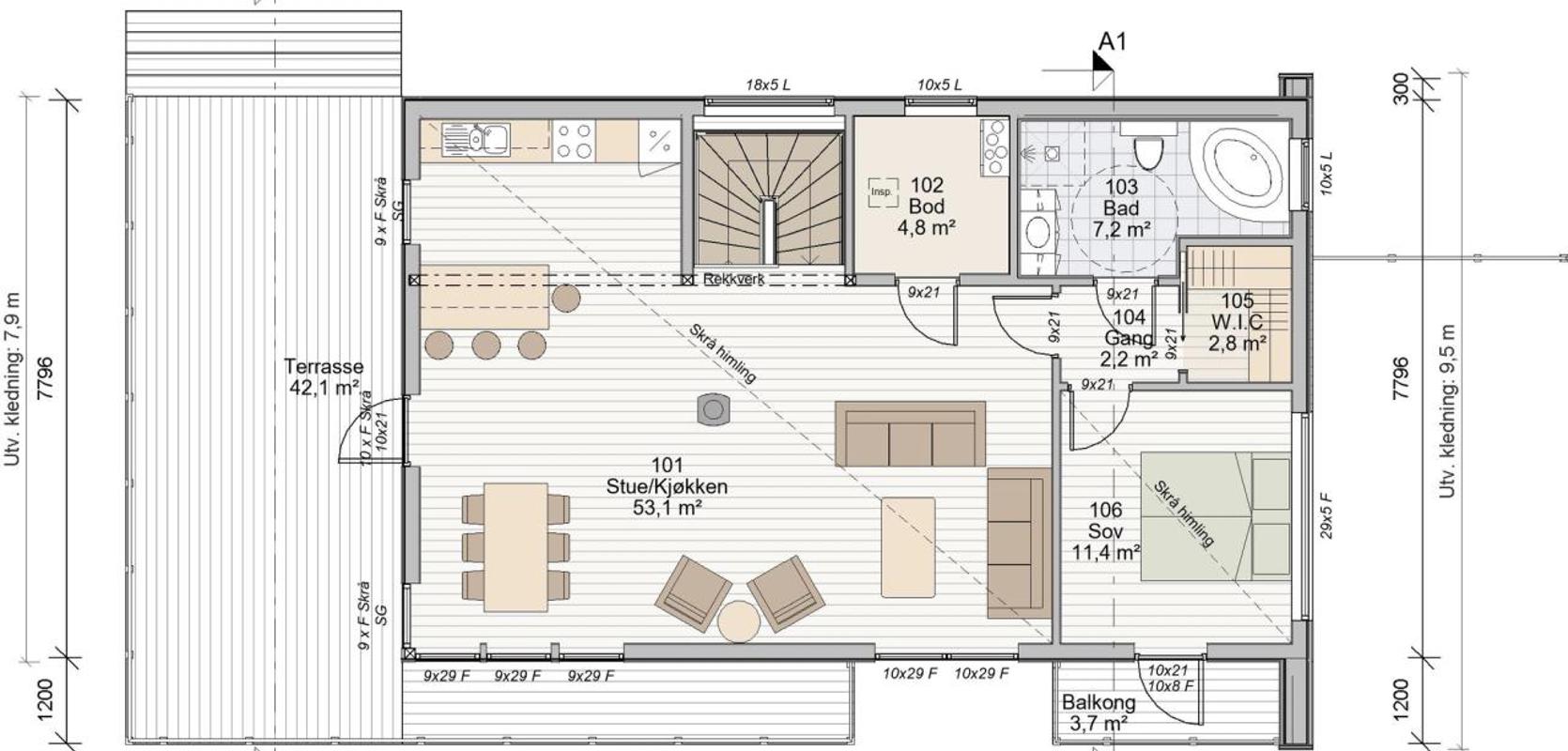
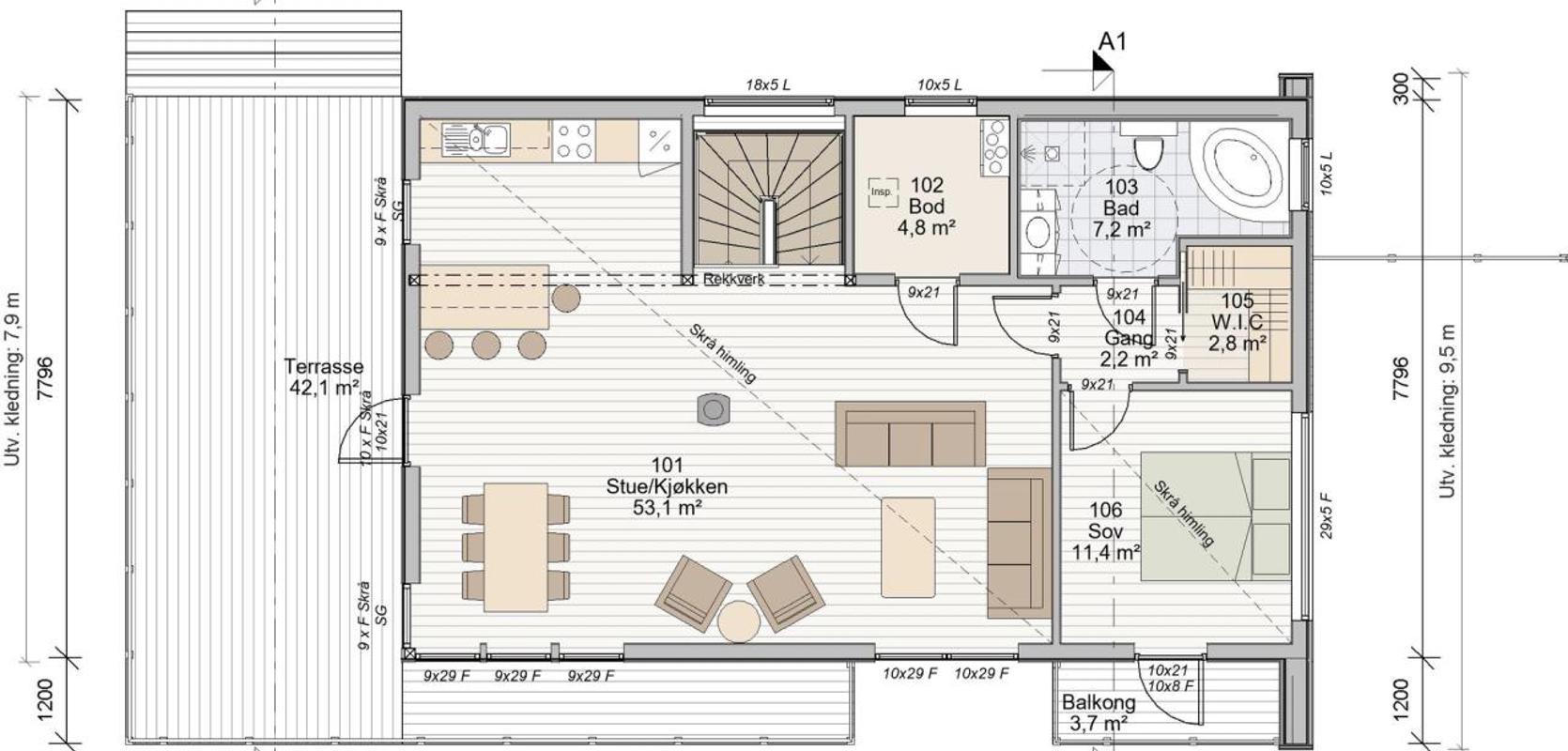
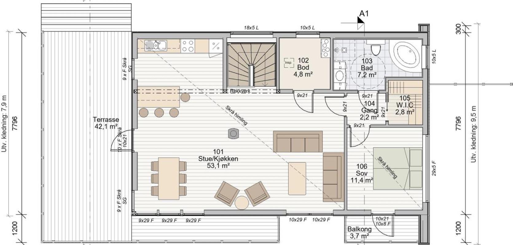
En trapp fra hallen fører deg opp til hovedplanet og inn i det romslige fellesrommet. Med skrå himling og store vindusflater gir dette rommet en flott og luftig atmosfære. Rommet er delt inn i praktiske soner, inkludert kjøkkenløsning, spiseområde og hyggesoner. Den store, flotte terrassen over carporten gir muligheten til å nyte måltider utendørs når været tillater det.
På hovedplanet finner du også en stor bod med god lagringsplass, samt en egen privat sone med et stort soverom som har en kort vei til walk-in-closet og et lekkert bad. Fra soverommet har du også tilgang til en sjarmerende liten terrasse, perfekt for avslapning med en god bok eller en rolig kopp kaffe om morgenen.
Signatur 305 er optimalisert for en skrå tomt, og med sin moderne design og funksjonelle planløsning er dette huset en drøm for enhver familie. Ikke rart så mange har valgt akkurat dette huset til sitt drømmehjem. Velkommen til Signatur 305!